
Mountain Modern Home in Sunriver, Oregon
Currently Under Construction
2,500 sq ft
–
3 beds, 3 baths
$TBD
–
Under Construction Today

Image for example only.
55995 Browning Drive
Richly detailed and filled with light, this unique home offers all of the gracious conveniences of modern living inside a beautifully designed mountain modern home. Available for purchase today.

Image for example only.
Amenities
ROOMS
3 Bedrooms
3 Baths
Kitchen
Great Room
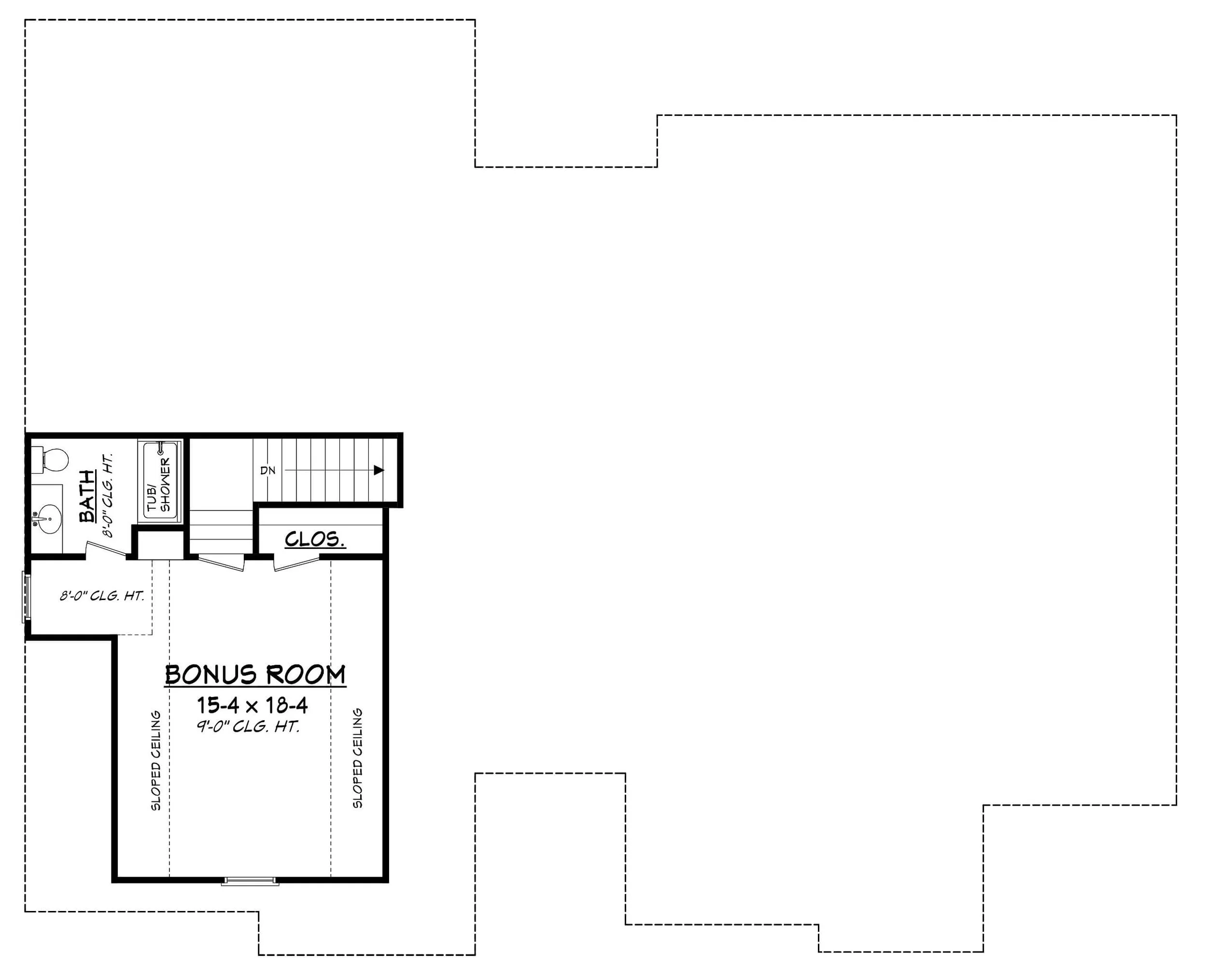
Bonus Room
MASTER SUITE
Double Vanity
Soaking Tub
Standalone Shower
Large Closet
Coffered Ceiling
Entry and Porches
Vaulted Front Entry
Timber Framing
Vaulted Rear Patio
Large Concrete Patios
FLOORING
Reclaimed Walnut
Moroccan Tile
Polished Concrete
KITCHEN
Butler’s Pantry
Standard Pantry
Breakfast Nook
Dishwasher
Island with Bar Seating
BUILDING AMENITIES
3 Car Garage
Storage Area
Wood Burning Stove
Central HVAC
An open, spacious floor plan with plenty of room for your family and guests. The final build will vary from this with a 3 car garage and other subtle changes.
Floor plan
Interested?
Image for example only.